長さ寸法の作成
長さ寸法は、2 点間の距離を測定します。直線寸法ツール (
) は、デフォルト ツールバーの 「寸法」 メニューにあります。下図のプルダウンメニューから選択します。または、メニュー バーから「ツール」 > 「寸法」 > 「直線寸法」 を選択します。

直線寸法を作成するには、次の手順に従います。
1.直線寸法ツールを選択します。
2.「寸法スタイル」 ダイアログで目的の寸法設定が選択されていることを確認します。これらのオプションの詳細については、この記事で後述する「寸法のスタイリングとスケーリング」を参照してください。
3.寸法の始点をクリックします。
4.寸法の終点をクリックします。
5.寸法補助線で寸法をオフセットするには、寸法が測定する線からカーソルを離します。寸法は、測定している 2 点に対して水平、垂直、または垂直に制限されます。
ただし、以下の装飾キーを使用することで制限を解除することができます。
・アイソメ ビューに寸法を追加:Altキー (MacはOptionキー) を押しながらカーソルを移動

・寸法の拘束を解除: Alt+Shift キー(Macはoption+Shiftキー) を押しながらカーソルを移動
6.クリックしてオフセットを設定し、寸法の作成を終了します。
ヒント:いくつかのショートカットを使用すると、オフセットが等しい連続する長さ寸法を作成できます。最初の寸法を作成した直後に、隣接する寸法の終点をダブルクリックして、別の寸法を作成できます。
|
左図では、①、②をクリックして寸法を作図したあと、③でダブルクリックしました。 |
または、寸法が最初の寸法に隣接していない場合は、2 番目の寸法の始点をクリックし、終点をダブルクリックします。
|
左図では、①、②をクリックして寸法を作図したあと、②をクリックして、③でダブルクリックしました。 |
※時計回りに連続して長さ寸法を作成すると、寸法がオブジェクト内に表示されることに注意してください。寸法をオブジェクトの外側に表示する場合は、反時計回りに移動します。
注:寸法が狭すぎて寸法テキストを明確に表示できないと LayOut が判断した場合、デフォルトでテキストが寸法から離れて引出線に接続されます (寸法引出線のスタイリングの詳細については、寸法のスタイリングとスケーリングを参照してください)。行)。引出線の長さはフォントサイズに基づいており、引出線の種類 (曲線など) は寸法スタイルで管理されています。 寸法線が小さすぎる場合、LayOut はテキストを寸法の外側に自動的に移動します。

寸法が狭く、寸法値に引き出し線が表示される寸法の作成中はAltキー以外に以下の装飾キーを使用することができます。
•値を配置する寸法の側を切り替えるための修飾キー :Ctrl キー(macは Option キー)
後でスタイルを変更する場合は、寸法をダブルクリックして編集モードにするか、寸法を選択して Enter(MacはReturn)キーを押します。LayOut で狭い寸法を自動検出して再フォーマットしない場合は、「寸法スタイル」 ダイアログ ボックスの 「引出線スタイル」 ドロップダウンから 「引出線なし」 オプションを選択します。
ヒント:寸法スタイル ダイアログで設定を変更し、その変更をドキュメント内の他の寸法に適用する場合は、デフォルト ツールバーのスポイト ツールをクリックし、使用する設定で寸法をサンプリングします。カーソルが塗りつぶしの形に変わり、設定を変更する寸法をクリックできます。
寸法エンティティ内の寸法と要素の移動
寸法全体だけでなく、寸法 エンティティ内のいくつかの要素を移動することもできます。寸法を全体として移動すると、他の LayOut エンティティと同様に、寸法を配置、移動、回転、およびスケーリングできます。
このセクションでは、寸法内の要素の移動に焦点を当てます。まず、それらの要素が何であるかを知ることが役に立ちます。次の移動可能な要素のリストでは、リスト内の番号は、次の図の吹き出し番号に対応しています。
|
①補助線 ②寸法線 ③寸法テキスト ボックス ④接続ポイント ⑤オフセット ポイント ⑥エクステント ポイント
|
LayOutの寸法は、移動できるいくつかの異なる線と点が含まれています。
寸法全体を移動するには、選択ツール (
) で寸法をクリックし、作図領域内の任意の場所にドラッグします。
両方の寸法補助線の長さを同時に変更するには、選択ツールをアクティブにして、寸法線をドラッグします。

寸法内の要素にアクセスするには、選択ツールを選択し、編集する寸法をダブルクリックするか、Enter(MacはReturn)キーを押します。要素の上に選択ツール カーソルが移動カーソル (
) に変わる位置に移動します。寸法内の任意の要素を移動できます。
|
①補助線 ②寸法線 ③寸法テキスト ボックス ④接続ポイント ⑤オフセット ポイント ⑥エクステント ポイント
|
•1 つの寸法補助線だけの長さを変更するには、寸法補助線に平行な⑤のオフセット ポイントをクリックしてドラッグします。
•寸法線のみを移動するには、寸法を選択して②の寸法線をドラッグします。接続ポイントやオフセット距離が失われることはありません。
•寸法線を制限のない方向に移動するには、Altキー (MacはOption キー ) を押しながら②の寸法線をドラッグします。
•寸法線の長さを変更するには、④の接続ポイントを寸法線と平行にドラッグします。
警告:寸法線を変更しても、寸法が自動的に調整されるとは限りません。接続ポイントを移動すると、元のポイントから切断されます。接続ポイントを新しいポイントに接続するには、接続ポイントが推定にスナップしていることを確認してください。また、最初に推定点にスナップされていたとしても、角度寸法が自動的に調整されることはありません。
•寸法テキスト ボックスを移動するには、選択ボックスをクリックしてドラッグします。この記事の後の「寸法のスタイル設定とスケーリング」で説明されているように、「寸法スタイル」 ダイアログを使用してテキスト ボックスの位置を変更することもできます。
•角度寸法の頂点を移動するには、クリックして作図領域内の任意の場所にドラッグします。角度の頂点を移動すると、寸法補助線の長さと角度が変わります。
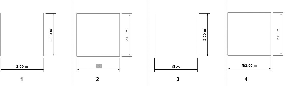
以下の方法で、正しい自動測定を維持しながら、任意の寸法にテキストを追加することができます。

1.寸法をダブルクリックしてから再度、寸法値をダブルクリックします。
2.テキストを変更できるようになります。
3.<>の外にテキストを入力します。
4.なにもないところでクリックすると入力したテキストと寸法値が表示されます。オブジェクトの大きさを変更するとテキストはそのままで寸法値のみが変更されます。
![]()
寸法を配置します。寸法の始点と終点をクリックし、寸法を表示する位置を調整してクリックします。
テキスト、引き出し線などの調整はラベルツールと同じです。
小さな寸法の場合は、自動的に引き出し線で寸法が表示されます。引き出し線の形状は引き出し線スタイルで変更できます。

寸法を配置する際に Alt キー(Mac の場合は Option)を使用するとアイソメトリック寸法を追加できます。

Alt + Shift(Mac の場合は Option + Shift)を使用すると、水平、鉛直、または垂直から寸法のロックが解除され、自由な角度で寸法を配置できます。
以下の方法で、正しい自動測定を維持しながら、任意の寸法にテキストを追加することができます。

5.寸法をダブルクリックしてから再度、寸法値をダブルクリックします。
6.テキストを変更できるようになります。
7.<>の外にテキストを入力します。
8.なにもないところでクリックすると入力したテキストと寸法値が表示されます。オブジェクトの大きさを変更するとテキストはそのままで寸法値のみが変更されます。